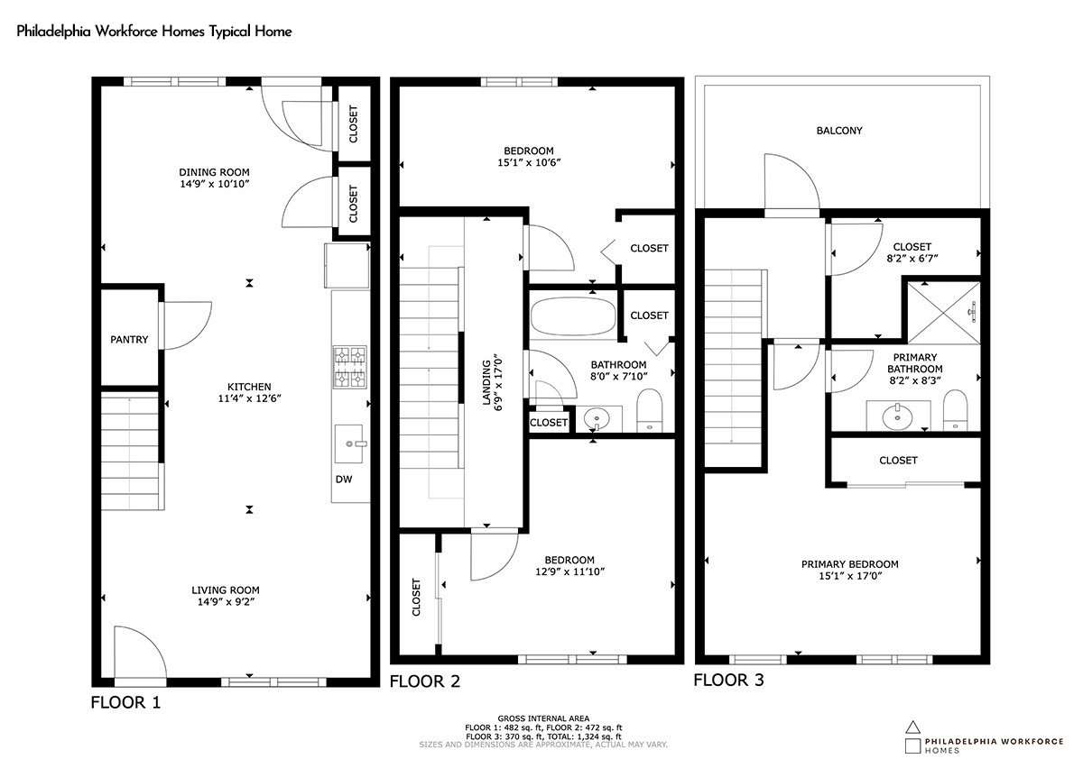
Philadelphia Workforce Homeownership is proud to offer Philadelphians affordable access to high-quality new-construction homes with private outdoor space and upscale finishes. While each project may vary, most Philadelphia Workforce Homeownership residences offer:
Three-bedroom, two-bathroom layouts
Private outdoor space
Brick facades
Energy-saving windows
High-quality hardwood and tile floors
Tall ceilings with recessed lighting
Spacious open-plan living spaces
Open kitchens with stainless steel Energy Star appliances
Contemporary bathrooms with low-flow toilets
In-unit washer-dryer hook-ups (we do not provide washer-dryer units)
Generous closet space
Central HVAC
10-year tax abatement
Excellent locations close to Center City
Explore a Philadelphia Workforce Homeownership Home